福賽爾技術資料
聯系我們
- 聯系人:郭經理
- 傳真:010-69552656
- 電話:400-0346-119
- 電話:010-57491119
- 郵箱:506665119@qq.com
- 地址:北京通州區M5運河1號3號樓403室
福賽爾JB-QB-V6821型火災報警控制器
時間:2018-09-07 09:01:49 品牌:
![[!--oldtitle--]](/d/file/baojingshebei/2018-09-07/f190b540bd8c106c8ac739a4ea098dd7.jpg)
產品概述:
JB-QB-V6821型火災報警控制器(以下簡稱V6821控制器)是一款壁掛式小點位的聯動型火災報警控制器,主要針對小型消防報警聯動系統。其符合--標準GB4717-2005《火災報警控制器》和GB16806-2006《消防聯動系統》。
功能特點:
• 4.3寸TFT真彩液晶屏顯示,觸摸屏操作;
• 單回路探測總線,-大點數256點。
• 可連接和監控我公司生產的各類總線設備及火災顯示盤等設備,報警設備與聯動設備地址混編;
• 具有回路總線短路保護和聯動電源短路保護功能;
• 具有中文信息打印功能,主機可存儲8000條事件記錄;
• 具有1組聲光警報器控制輸出和6組可編程有源控制輸出;
• 現場編程可采用在主機上手工操作方式或連接筆記本電腦方式實現現場編程;
• 配接聯網卡可與我廠的其它型號的控制器實現聯網功能。
主要技術指標:
• 工作主電電壓: AC180V ~AC242V/50HZ
• 備用電池規格: 2.3AH/12V、2節
• 回路輸出電壓: DC15V-DC28V
• 回 路 數 量: 單回路
• 回 路 容 量: 256個地址點
• 回路-大輸出電流: 200mA
• 回路-大保護電流: ≤400mA
• 可編程控制輸出: 6組,DC24V/1A
• 聲光警報控制輸出: 1組,DC24V/1A
• 聯動電源輸出: DC24V/2A
• 工作環境溫度: -10℃ ~ 50℃
• 環境相對濕度: ≤95%RH(40±2℃)
• 安 裝 方 式: 壁掛式
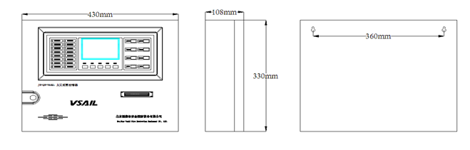
• 外 形 尺 寸:寬430mm×高330mm×厚108mm
外形結構與安裝方式:








